Submit manuscript...
MOJ
eISSN: 2573-2919

Ecology & Environmental Sciences

Opinion Volume 8 Issue 2

Unload control - efficiency strategy and rainfall control in urban wastewater systems

José M Correia Alves

Civil Engineer, Águas do Norte, Portugal

Correspondence: José M Correia Alves, Civil Engineer, Águas do Norte, Portugal, Tel +351937116556

Received: January 23, 2023 | Published: April 11, 2023

Citation: Alves JMC. Unload control - efficiency strategy and rainfall control in urban wastewater systems. MOJ Eco Environ Sci. 2023;8(2):43-45. DOI: 10.15406/mojes.2023.08.00272

Download PDF

Abstract

Controlling the influx of rainwater to domestic wastewater transport and treatment systems, aims to reduce its economic impact on energy and the interference in the treatment process, taking into account the technical and legal issues associated with its upstream rejection of such infrastructure.

In order to guarantee safety in the flow thinning, we will have to monitor the quality of the effluent, basically in terms of COD, which directly indicates the degree of dilution and consequent influx of rainwater, and the flow rates upstream and to be discharged.

This pilot project intends to implement the digitization of the process with automatic monitoring and control equipment with information sent to SCADA and availability of information to the Portuguese Environment Agency.

Keywords: pluvial waters, controlled discharge

Heading

Urban wastewater is, according to current legislation, domestic wastewater or its mixture with industrial wastewater and/or rainwater; in Portugal, continues to have a high contribution of rainwater, coming from unitary networks (which mix domestic wastewater with rainwater) or even from infiltrations in manholes of the systems or outfall failures in areas with high groundwater level.

Directive 91/271/EEC of the European Council, of May 21, 1991, commonly known as the Urban Wastewater Directive (DARU), has as its primary objective “to protect the environment from the harmful effects of urban wastewater discharges”. It was amended by Directive 98/15/EC of the European Commission, of February 27, 1998 and by Regulations (EC) No. 1882/2003, of the European Parliament and of the Council, of September 29 and No. 1137/2008, of the European Parliament and of the Council, of 22 October 2008.

These Directives were transposed into Portuguese legislation, respectively, by Decree-Law n.º 152/97, of 19th of June and by Decree-Law n.º 348/98, of 9th of November.

Urban wastewater treatment in Portugal is regulated by Decree-Law No. 152/97, of 19 June, which transposes Directive 91/271/EEC of the European Council, of 21 May 1991, approving the applicable provisions collection, treatment, and discharge of urban wastewater into the aquatic environment, as well as the identification list of sensitive areas and less sensitive areas for mainland Portugal.

Decree-Law n.º 261/99, of July 7th, extended the obligations of the Directive to the Autonomous Regions of the Azores and Madeira and amended Annex II of Decree-Law n.º 152/97, of June 19th, regarding the delimitation of less sensitive areas. Subsequently, Decree-Law No. 172/2001, of May 26, Decree-Law No. 149/2004, of June 22 and Decree-Law No. 198/2008, of October 8, successively amended Decree-Law No. -Law No. 152/97, of 19 June, essentially referring to the list of sensitive areas. Considering the need to further review the delimitation of less sensitive areas, namely about the areas designated for the Autonomous Region of Madeira, Decree-Law No. as less sensitive zone the coastal waters of the northern slope of the island of Madeira and of all the coastal waters of the island of Porto Santo.

Decree-Law no. 77/2021, of 27 August, makes the 7th amendment to the framework applicable to sensitive areas relating to the treatment of urban wastewater and Ordinance no. 188/2021, of 8 September, identifies new sensitive and less sensitive areas.

The disposal of wastewater is also carried out in compliance with the principles of precaution, prevention and correction referred to in paragraph 1 of article 3 of the Water Law, and the respective licensing procedures are established in Decree-Law no. 226-A/2007, of May 31.

The typical composition of an urban wastewater, in the main parameters contained in the licenses for the use of water resources, is: Total Organic Carbon Value (COT) less than 1.000 mg O2/l, 5-day biological oxygen starvation (BOD-5) less than 500 mg O2/l, and in the licenses for the rejection of treated effluent for the water environment, generally, the Total Organic Carbon Value (COT) less than 150 mg O2/l, 5-day biological oxygen starvation (BOD-5) less than 40 mg O2/l.

The total organic and biodegradable loads usually decrease proportionally to the dilution of the wastewater with the rainwater mixture, which causes, in systems with high infiltration, COD and BOD5 values below the emission values of the discharge permits. This situation opens up an opportunity to reject this urban wastewater without the need to lead it to a WWTP, especially when for transport we need energy for elevation.

The influx of rainwater to urban wastewater outfalls is a widespread and known problem in most transport and treatment systems.

This situation has a very relevant financial scope, not only in terms of energy but also of premature wear and tear of infrastructure.

Although the origin of these infiltrations comes from urban collection networks, which are not normally separative, there has been no investment in their separation and improvement, leaving the problem downstream, both in transport and in treatment.

Considering the current situation, the only option is to treat this situation in the "high" outfalls and try not to transport the wastewater that, by dilution, can be "thinned" before reaching the pumping stations and the WWTPs.

This situation of flow control is achieved by means of storm unloaders, either "in line" at the emissaries or at the installations themselves.

In Portugal, the construction and operation of unloaders is regulated in the "General Regulation of Public and Building Water Distribution and Wastewater Drainage Systems”1 document that dates from 1995 and points, in its articles 168º and 172º, the criteria of location and dimensioning are determined.

To do the physical dimensioning of the unloaders, to calculate the different parameters of fluid mechanics for this design in terms of height and length of the spillway blades, it is necessary to have a historical record of "dry" flows (Q) in the summer period in the outfall in question, since it is based on this information that the spillway will be dimensioned, to discharge the flow more than six times the average dry flow (Q) in that emissary.

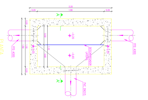
Based on the equations most applicable to free surface flow “, the "Manning-Strickler" formula: Q=A . Ks . Rh ^ (1/3). i ^ (1/2) is used, knowing the variables Q (flow, m3/s), A (flow section area = wetted area, m2), Ks (roughness coefficient, m^(1/3), i (inclination of the collector, %), Rh (hydraulic radius, m), to calculate the wetted area of the pipe, as well as its wetted perimeter, based on which the height and length is determined of the unloader blade and its length (in the case show below at Figure 1 and Figure 2: canal = 0,50m×0,15m ; length = 1,80m), in order to unload the flow that is deemed appropriate for each situation.

Figure 1 Unloader project – on blueprint.

Figure 2 Unloader project – on blueprint.

The placement of a flow meter, in this case an ultrasonic meter inserted in the pipe under load, in the outfall upstream of the unloader will allow the monitoring of dry flows and the construction of a real history, which will allow the specific tuning of the unloader.

On the other hand, the placement of another flow meter, in this case another ultrasonic meter inserted in the pipe under load, in the discharge piping for the water medium will make it possible to account for the volume of water discharged and withdrawn from the transport system, as it is in excess (above six times the dry flow) or in conditions discharge (according to the emission limit values of the discharge license).

The project foresees the construction of a computational algorithm that, based on the data obtained by the load probe and flow meters, will command the opening and closing of the unloader blade, later sending this information to the SCADA that controls the system and that will allow to collect information to be sent to regulatory and supervisory bodies.

The automation of the process will allow for safety in the rejection of flows, both in technical and legal terms, avoiding their transport to the WWTP.

This automation will allow a considerable saving of energy costs associated with the elevation and treatment of these waters, mainly in systems with many pumping stations such as the system under study (Vilar Wastewater Subsystem, located in the river Távora hydrographic basin, in the municipalities of Moimenta da Beira and Sernancelhe, from the district of Viseu – center of Portugal: it has 23 pumping stations, 1 WWTP and about 50km of outfalls).

To do the economical calculations, we must know the cost of the waste water transported to the WWTP. These costs relate to the pumping energy, corrective pump maintenance, These costs relate to the cost of pumping energy, corrective pump maintenance costs and costs caused by the heably worn wear on transport organs. These corrective maintenance costs are greatly aggravated by the large transport of inert rainwater in the pipes.

This implementation could have an impact of reducing energy consumption and increasing its efficiency in unit terms, about 20%, also to reduce breakdowns and all associated costs.

The estimated cost savings with the introduction of storm unloaders, in this drainage system and wastewater treatment in the north of Portugal, is about 60m€/year and with the possibility of increasing about another 10m€/year with this project of the automation of the unloader (Figure 3) (Figure 4).

Figure 3 Unloader in operation without automatic monitoring.

Figure 4 Volumes of urban wastewater and thinning possible due to rain – Vilar, 2020 forecast.

Acknowledgments

None.

Funding

None.

Conflicts of interest

The authors declare no conflict of interest.

References

  1. Portuguese general regulation of public and foregoing water distribution and wastewater drainage systems. Regulatory Decree.
Creative Commons Attribution License

©2023 Alves. This is an open access article distributed under the terms of the, which permits unrestricted use, distribution, and build upon your work non-commercially.

Citations

Media Partner & Supporters